40
$799,000 Sale
Listed 13 hours ago
9 14025 NICO WYND PLACE
· 2
· 2.0
· 1
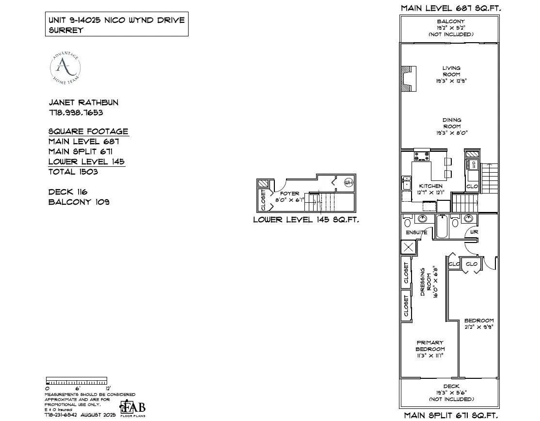
· 1503
Key Facts
Key facts for 9 14025 NICO WYND PLACE
Property Type
Condo, Apartment
Parking
Garage: No, 1 parking
MLS #
R3055693
Size
1503 sqft
Basement
Unknown, None (Unknown)
Listed on
-
Lot size
-
Tax
-
Days on Market
-
Year Built
-
Maintenance Fee
$709.02/mo
Description
76 acres of RESORT living in beautiful South Surrey. Step into 1500+ SF of light-filled luxury in this beautiful 2 bedroom, 2 bathroom top-floor home. Enjoy sweeping views of golf course, mountains and Nicomekl River. The bright and airy floor plan features a spacious kitchen with stainless steel, g...ranite counters including breakfast bar and solid wood cabinets. The living and dining rms showcase gorgeous hardwood flooring, floor-to-ceiling windows and a large deck to enjoy the views. Both bedrooms open to south facing balconies. Included with ownership are 2 golf memberships and access to an exceptional array of amenities: a clubhouse with restaurant, tennis and pickleball courts, indoor pool, gym, marina, and more. Enjoy scenic dyke walks, yoga classes and a family and pet-friendly community. Easy access to highways being West of King George Hwy. (id:10452)
Similar Properties (No results)
Listing courtesy of: RE/MAX Performance Realty
This REALTOR.ca listing content is owned and licensed by REALTOR® members of The Canadian Real Estate Association.